villa in starnberg, bavaria.
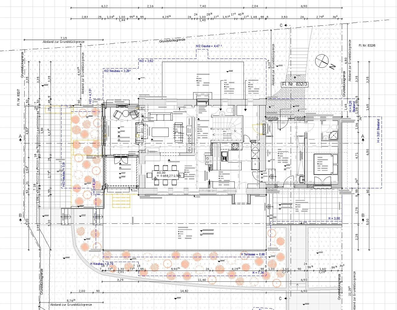
A renovation of a family house in the beloved area of Starnberg.
A renovation of a family house in the beloved area of Starnberg.